Построен каркасный дом КП "Удальцовские поместья". Объект сдан 25.12.2025
Тип сооружения: Каркасный дом.
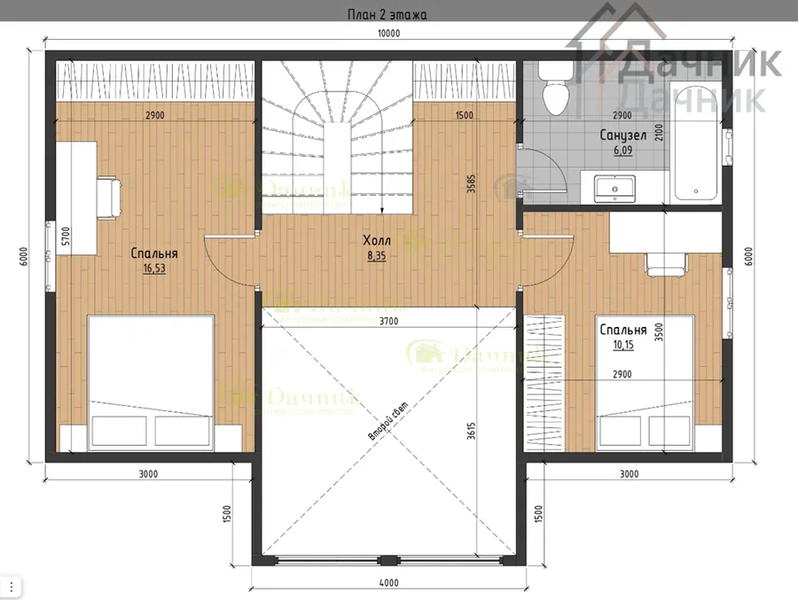
Размеры: 13,5х7,5м с террасой.
Стоимость строительства: 9 852 200 руб.
Место: Приозерский р-н, КП "Удальцовские поместья".
Проект: за основу взят Дом 7,5х10 ДК-181 со всеми коммуникациями из каталога
Посмотрите видеообзор на этот проект
Вы можете заказать у нас такой же или похожий дом, оставьте заявку и наш специалист свяжется с вами для подбора идеального проекта.



