Dachnik logo
+78122428686Без выходных 9:00-18:00

Каркасный дом 7х8м. ДК-202

Ссылка на проект: https://msk.dachnik-spb.ru/projects/karkasnyj-dom-7h8m-dk-202/
Фасад-202-2026
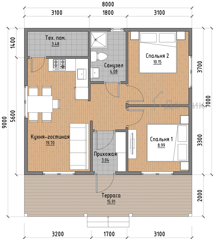
Дк-202 - План этажа - 1 Этаж

Комплектации дома

С отделкой: 4 551 300 руб.

Пиломатериалы на дом
Тип пиломатериала
Сухая строганная доска
Перекрытия
Составная обвязка
Строганная доска 45х145мм.
Сетка от грызунов
Отсутствует
Черновые полы
Строганная доска 20х95мм.
Лаги пола
Строганная доска 45х145мм.
Лаги потолка
Строганная доска 45х145мм.
Стропильная система
Строганная доска 45х145мм.
Стены и перегородки
Стены наружные
Строганная доска 45х145мм.
Перегородки внутренние
Строганная доска 45х95мм.
Подкладная доска, укосы, ригеля
Строганная доска 45х145мм.
Высота потолка
2500мм.
Крыша
Обрешетка
Строганная доска 20х95мм.
Контробрешетка
Строганный брусок 45х45мм.
Кровельное покрытие
Металлочерепица Супермонтеррей
Водосточная система
Отсутствует
Паро-гидро-ветроизоляция
Влаго-ветрозащита
Ондутис Smart A 100
Пароизоляционная пленка
Ондутис Smart B
Подкровельная супердиффузионная мембрана
Ондутис Smart D
Герметизация стыков пленки
Лента Fakro HausBand
Утепление
Пол
Rockwool Лайт Баттс 150мм.
Стены
Rockwool Лайт Баттс 150мм.
Потолок
Rockwool Лайт Баттс 150мм.
Перегородки внутренние
Rockwool Лайт Баттс 100мм
Наружная отделка
Контробрешетка на фасад
Сухая рейка 20х45мм.
Стены наружные
Имитация бруса, карельский профиль
Свесы и углы, наличники
Евровагонка
Пол террасы (при наличии)
Террасная доска, Вельвет
Ограждение террасы (при наличии)
Строганная доска 20х95мм.
Окна, двери
Оконные блоки и дверь на террасу
Двухкамерные стеклопакеты ПВХ
Аксессуары к оконным блокам
Отливы внешние
Входные дверные блоки
Металлическая Россия
Перегородочные двери
Отсутствуют
Внутренняя отделка
Внутренняя контробрешетка
Сухая рейка 20х45мм.
Стены
Евровагонка
Перегородки
Евровагонка
Потолок
Евровагонка
Напольное покрытие
Quick Deck Professional
Коммуникации
Вентиляция
Приточные клапана на кухне и сан. узле
Доставка, сборка, контроль, гарантия
Доставка и выгрузка материалов
Включена доставка и выгрузка
Сборка домокомплекта
Сборка по проектной документации (КД)
Технический надзор
Контроль персональным прорабом
Гарантия
Три года

Под ключ: 8 164 400 руб.

Фундамент
Вид фундамента
Железобетонные сваи
Пиломатериалы на дом
Тип пиломатериала
Сухая строганная доска
Перекрытия
Составная обвязка
Составная доска 45х145мм
Сетка от грызунов
Металлическая сетка от грызунов
Черновые полы
Строганная доска 20х95мм.
Лаги пола
Строганная доска 45х195мм.
Лаги потолка
Строганная доска 45х195мм.
Стропильная система
Строганная доска 45х195мм.
Стены и перегородки
Стены наружные
Строганная доска 45х195мм
Перегородки внутренние
Строганная доска 45х95мм.
Подкладная доска, укосы, ригеля
Строганная доска 45х145мм.
Высота потолка
2700мм.
Крыша
Обрешетка
Строганная доска 20х95мм.
Контробрешетка
Строганный брусок 45х45мм.
Кровельное покрытие
Металлочерепица Grand Line, толщина 0,5мм
Водосточная система
Docke Premium на металлических крюках
Паро-гидро-ветроизоляция
Влаго-ветрозащита стен
Плиты Белтермо 20мм
Влаго-ветрозащита пола
Ондутис Smart A 100
Пароизоляционная пленка
Пленка 200мкм
Подкровельная супердиффузионная мембрана
Ондутис Smart AM
Герметизация пароизоляционной пленки
Скотч Delta
Утепление
Пол
Rockwool Лайт Баттс 200мм.
Стены
Rockwool Лайт Баттс 200мм.
Потолок
Rockwool Лайт Баттс 200мм.
Перегородки внутренние
Rockwool Лайт Баттс 100мм
Наружная отделка
Контробрешетка на фасад
Сухая рейка 20х45мм.
Стены наружные
Имитация бруса, карельский профиль
Свесы и углы, наличники
Строганная доска 20х95мм.
Заводская покраска фасада
Краски Teknoviks в 3 слоя
Пол террасы (при наличии)
Террасная доска, Вельвет
Ограждение террасы (при наличии)
Строганная доска 20х95мм.
Окна, двери
Оконные блоки и балконная дверь
Пятикамерная система 70мм, Veka Softline
Аксессуары к оконным блокам
Москитные сетки, отливы, подоконники
Входные дверные блоки
Металлическая с терморазрывом
Перегородочные двери
Экошпон
Внутренняя отделка
Внутренняя контробрешетка
Сухая рейка 20х45мм.
Стены
Имитация бруса, карельский профиль
Перегородки
Имитация бруса, карельский профиль
Потолок
Евровагонка
Напольное покрытие
Ламинат
Бытовая сантехника
Унитаз, раковина, душевая кабина
Коммуникации
Вентиляция
Вентиляционные клапана в кровле и приточные клапана в стене
Электропроводка
Розетки, выключатели, лампы, распределительный щиток
Автономная канализация
Станция биологической очистки
Водоснабжение (трубы)
Разводка ХВС, ГВС и канализации
Водоснабжение (горячая вода)
Бойлер электрический 100 л
Отопление
Электрические конвектора
Бытовая сантехника
Унитаз, раковина, душевая кабина
Обеспечение строительства
Обеспечение строительства
Аренда бытовки и биотуалета
Проектирование
Архитектурный и конструктивный проект
Доставка и выгрузка материалов
Бесплатная доставка и выгрузка
Кадастровые работы
Постановка дома на кадастровый учёт
Технический надзор
Контроль персональным прорабом
Гарантия
Три года

Дополнительные опции

Фундамент: Свайно-винтовой, стоимость от
178 500 ₽
Фундамент: Железобетонные сваи, стоимость от
229 500 ₽
Коммуникации
Электропроводка: розетки, выключатели, лампы, распределительный щиток
377 600 ₽
Водоснабжение: открытая разводка ХВС, ГВС и канализация
217 600 ₽
Автономная канализация: станция биологической очистки (Интал Био-5).
214 700 ₽
Отопление: электрические обогреватели и электрический водонагреватель
276 400 ₽
Отопление: электрический котел + радиаторы
704 100 ₽
Теплый пол под ключ + стяжка
759 000 ₽
Приготовление ХВС: бойлер косвенного нагрева на 150 литров
145 000 ₽
Бытовая сантехника
126 500 ₽
Варианты внутренней отделки
Замена Евровагонки на ГКЛ 2 слоя
96 900 ₽
Замена Евровагонки на Имитацию бруса (стены, перегородки)
130 600 ₽
Ламинат, 33 класс, толщина 8мм.
176 400 ₽
Установка перегородочных дверей (МДФ + Эко-шпон)
142 900 ₽
Покраска внутренних стен воском Teknoviks в 3 слоя (грунтовка + два слоя воска)
378 100 ₽
Варианты внешней отделки
Покраска фасада красками Teknoviks в 3 слоя (грунтовка + два слоя краски)
301 000 ₽
Отделка фасада сайдингом "Дёке"
181 800 ₽
Отделка фасада "Hauberk" (камень, кирпич)
261 000 ₽
Отделка фасада Имитацией бруса вертикально
52 700 ₽
Отделка фасада Фиброцементный сайдинг Decover
497 900 ₽
Установка москитных сеток, подоконников
34 600 ₽
Установка водосточной системы "Дёке"
90 600 ₽
Установка цокольных панелей "Дёке"
93 900 ₽
Конструктивные элементы
Добавить в теплый контур отделку пола: Quick Deck или OSB
264 900 ₽
Добавить в теплый контур отделку стен и перегородок: Евровагонкой
597 100 ₽
Добавить в теплый контур обшивку потолка: Евровагонкой
146 000 ₽
Антисептирование силового каркаса на производстве
63 200 ₽
Усиленные лаги пола и потолка - 200мм.
57 800 ₽
Поднятие потолка на 150мм
92 700 ₽
Сетка от грызунов
33 400 ₽
Перекрестное утепление 50мм (пол, стены, потолок)
172 400 ₽
Тепло-звукоизоляция наружных стен Белтермо 20мм.
144 500 ₽
Аренда блок-контейнера для проживания бригады
61 200 ₽
Аренда биотуалета
24 500 ₽
Главная»проекты»Каркасный дом 7х8м. ДК-202

Каркасный дом 7х8м. ДК-202

Стоимость:
от 4 551 300 ₽
* Цена в теплом контуре, без привлечения кредитных средств
Стоимость с 26 мая: от 4 915 404 ₽
2 спальни
1 санузел

Комплектации дома

Пиломатериалы на дом
Тип пиломатериала
Сухая строганная доска
Перекрытия
Составная обвязка
Строганная доска 45х145мм.
Сетка от грызунов
Отсутствует
Черновые полы
Строганная доска 20х95мм.
Лаги пола
Строганная доска 45х145мм.
Лаги потолка
Строганная доска 45х145мм.
Стропильная система
Строганная доска 45х145мм.
Стены и перегородки
Стены наружные
Строганная доска 45х145мм.
Перегородки внутренние
Строганная доска 45х95мм.
Подкладная доска, укосы, ригеля
Строганная доска 45х145мм.
Высота потолка
2500мм.
Крыша
Обрешетка
Строганная доска 20х95мм.
Контробрешетка
Строганный брусок 45х45мм.
Кровельное покрытие
Металлочерепица Супермонтеррей
Водосточная система
Отсутствует
Паро-гидро-ветроизоляция
Влаго-ветрозащита
Ондутис Smart A 100
Пароизоляционная пленка
Ондутис Smart B
Подкровельная супердиффузионная мембрана
Ондутис Smart D
Герметизация стыков пленки
Лента Fakro HausBand
Утепление
Пол
Rockwool Лайт Баттс 150мм.
Стены
Rockwool Лайт Баттс 150мм.
Потолок
Rockwool Лайт Баттс 150мм.
Перегородки внутренние
Rockwool Лайт Баттс 100мм
Наружная отделка
Контробрешетка на фасад
Сухая рейка 20х45мм.
Стены наружные
Имитация бруса, карельский профиль
Свесы и углы, наличники
Евровагонка
Пол террасы (при наличии)
Террасная доска, Вельвет
Ограждение террасы (при наличии)
Строганная доска 20х95мм.
Окна, двери
Оконные блоки и дверь на террасу
Двухкамерные стеклопакеты ПВХ
Аксессуары к оконным блокам
Отливы внешние
Входные дверные блоки
Металлическая Россия
Перегородочные двери
Отсутствуют
Внутренняя отделка
Внутренняя контробрешетка
Сухая рейка 20х45мм.
Стены
Евровагонка
Перегородки
Евровагонка
Потолок
Евровагонка
Напольное покрытие
Quick Deck Professional
Коммуникации
Вентиляция
Приточные клапана на кухне и сан. узле
Доставка, сборка, контроль, гарантия
Доставка и выгрузка материалов
Включена доставка и выгрузка
Сборка домокомплекта
Сборка по проектной документации (КД)
Технический надзор
Контроль персональным прорабом
Гарантия
Три года

Кастомизируйте свой дом

По вашим наброскам и чертежам совместно с архитектором создадим неповторимый дом мечты. Оставьте заявку и наш специалист свяжется с вами.

Причины заказать дом именно у нас

1

Гарантия на ваш дом на 5 лет

2

Оплата работ после сдачи объекта

3

Надзор на всех этапах монтажа и строительства

4

Не срываем сроки, платим неустойки

5

Дома строятся только по проектной документации архитектора

6

Работаем с ипотекой, материнским капиталом, субсидиями

Зафиксируйте стоимость дома

Посмотрите видео о контроле качества при строительстве

Свяжитесь с нами, мы ответим на все вопросы и рассчитаем стоимость вашего дома

Официальный партнер выставки домов «Малоэтажная страна»